| 建筑面积: | 2478平 | 地上: | 5层 | 地下: | 0层 | ||
| 建筑结构: | 框架结构 | 基础: | 独立基础 | ||||
| 图纸地区: | 福建 | 制图年份: | 2025年 | ||||
| 配套文件: | 图纸+工程量计价控制价 | ||||||
| 图纸包含: | |||||||
| 总平面-建筑-结构-装饰-消防-给排水-电气-暖通 | |||||||
| 发布时间: | 2026-03-25 | ||||||
|
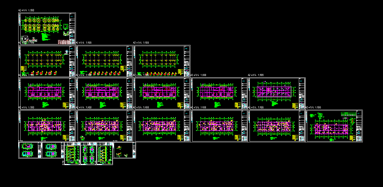
以下为仅为建施与基础的部分截图,点击可放大 如需细看或看水电暖安装可联系客服可详看dwg文件 毕设套餐有问题免费换 联系客服可以看工程的真实名称 |
| 建筑面积: | 2478平 | 地上: | 5层 | 地下: | 0层 | ||
| 建筑结构: | 框架结构 | 基础: | 独立基础 | ||||
| 图纸地区: | 福建 | 制图年份: | 2025年 | ||||
| 配套文件: | 图纸+工程量计价控制价 | ||||||
| 图纸包含: | |||||||
| 总平面-建筑-结构-装饰-消防-给排水-电气-暖通 | |||||||
| 发布时间: | 2026-03-25 | ||||||
|
以下为仅为建施与基础的部分截图,点击可放大 如需细看或看水电暖安装可联系客服可详看dwg文件 毕设套餐有问题免费换 联系客服可以看工程的真实名称 |